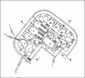
Plan zum Werk Larino
Ex Forte Lardaro
Ulrich Mößlang Optik Heydenreich der  Tauchbrillenspezialist  und  zertifizierter Sport-Optiker  
Fernkampfwerke, Bunker, Infanteriestützpunkte, Stellungen und Festungen der Österreicher und Ex Forte der Italiener aus dem ersten Weltkrieg in den Alpen, Dolomiten, Verona, Venezien und Friaul.

 

Diese alte Zeichnunge wurden mir von einer  italienischen Seite  von Giorgio Trevisan 
zur Verfügung gestellt.

Zurück zum Text

zurück zur Indexseite Ladaro-Sperre

 

 

zurück zum Index